Listing Tools

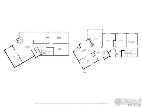
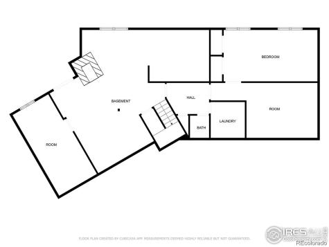
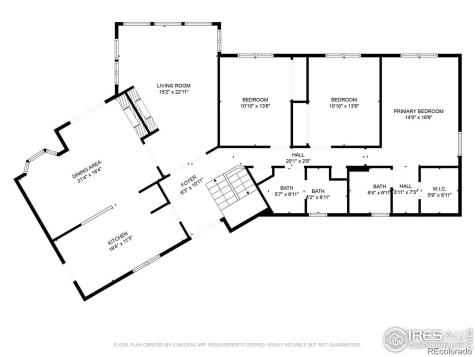
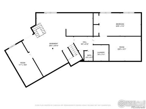
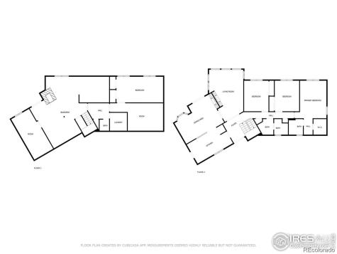
Set on a rare 3-acre lot with sweeping mountain views and a secluded feel, this property is perfect for the buyer who wants to renovate a home with incredible bones and capitalize on a large, open lot-all within walking distance of the highly rated Van Arsdale Elementary. The lot can be subdivided into a 2-acre and 1-acre parcel, with the option to sell the smaller parcel if desired-an excellent way to help finance your renovation vision. Inside, the home offers over 3,400 sq ft of living space-1,800 sq ft above ground plus 1,680 sq ft in the walk-out basement-giving you flexible square footage to reimagine. The main level features a spacious kitchen, a formal dining room, and a separate living area anchored by a beautiful double-sided brick wood-burning fireplace. The dining room opens to an all-weather deck overlooking the expansive yard-great for gathering friends and family during and after the remodel. Upstairs, you'll find three bedrooms, including a primary suite with a private bath, plus a full hallway bathroom with dual vanities. Downstairs is built for future possibilities: two large living areas, a laundry room, and a central mid-century modern brick fireplace set the stage. There's also a powder room and a fully plumbed, unfinished space ready for a luxury bathroom suite-with room for a sauna and steam shower. Outside, the property includes an outbuilding and fencing for a horse corral and riding area. Surrounded by undeveloped land, it offers rare privacy and space-just waiting for your personal touch. Though cosmetic renovations are needed-or perhaps even a full interior redevelopment to truly make this home shine-the solid structure and one-of-a-kind setting make this a rare chance to create your dream home while leveraging the land's built-in flexibility.

Property Details of 12940 W 75th Avenue

Map Location

The content relating to real estate for sale in this Web site comes in part from the Internet Data eXchange (“IDX”) program of METROLIST, INC., DBA RECOLORADO® Real estate listings held by brokers other than Brandi Wright are marked with the IDX Logo. This information is being provided for the consumers’ personal, non-commercial use and may not be used for any other purpose. All information subject to change and should be independently verified.

This publication is designed to provide information with regard to the subject matter covered. It is displayed with the understanding that the publisher and authors are not engaged in rendering real estate, legal, accounting, tax, or other professional services and that the publisher and authors are not offering such advice in this publication. If real estate, legal, or other expert assistance is required, the services of a competent, professional person should be sought.

The information contained in this publication is subject to change without notice. METROLIST, INC., DBA RECOLORADO MAKES NO WARRANTY OF ANY KIND WITH REGARD TO THIS MATERIAL, INCLUDING, BUT NOT LIMITED TO, THE IMPLIED WARRANTIES OF MERCHANTABILITY AND FITNESS FOR A PARTICULAR PURPOSE. METROLIST, INC., DBA RECOLORADO SHALL NOT BE LIABLE FOR ERRORS CONTAINED HEREIN OR FOR ANY DAMAGES IN CONNECTION WITH THE FURNISHING, PERFORMANCE, OR USE OF THIS MATERIAL.

All real estate advertised herein is subject to the Federal Fair Housing Act and the Colorado Fair Housing Act, which Acts make it illegal to make or publish any advertisement that indicates any preference, limitation, or discrimination based on race, color, religion, sex, handicap, familial status, or national origin.

METROLIST, INC., DBA RECOLORADO will not knowingly accept any advertising for real estate that is in violation of the law. All persons are hereby informed that all dwellings advertised are available on an equal opportunity basis.

©2026 METROLIST, INC., DBA RECOLORADO® – All Rights Reserved 6455 S. Yosemite St., Suite 300 Greenwood Village, CO 80111 USA

ALL RIGHTS RESERVED WORLDWIDE. No part of this publication may be reproduced, adapted, translated, stored in a retrieval system or transmitted in any form or by any means, electronic, mechanical, photocopying, recording, or otherwise, without the prior written permission of the publisher. The information contained herein including but not limited to all text, photographs, digital images, virtual tours, may be seeded and monitored for protection and tracking.

Hi there! How can we help you?

Contact us using the form below or give us a call.

Send Us A Message:

I agree to receive marketing and customer service calls and text messages from Brandi Wright. To opt out, you can reply 'stop' at any time or click the unsubscribe link in the emails. Consent is not a condition of purchase. Msg/data rates may apply. Msg frequency varies. Privacy Policy.

Do not fill in this field:

This site is protected by reCAPTCHA and the Google Privacy Policy and Terms of Service apply.

Hi there! How can we help you?

Contact us using the form below or give us a call.

Send Us A Message:

Do not fill in this field:

This site is protected by reCAPTCHA and the Google Privacy Policy and Terms of Service apply.

Hi there! How can we help you?

Contact us using the form below or give us a call.

Send Us A Message:

Do not fill in this field:

This site is protected by reCAPTCHA and the Google Privacy Policy and Terms of Service apply.

Do not fill in this field:

This site is protected by reCAPTCHA and the Google Privacy Policy and Terms of Service apply.

Do not fill in this field:

This site is protected by reCAPTCHA and the Google Privacy Policy and Terms of Service apply.

Do not fill in this field:

This site is protected by reCAPTCHA and the Google Privacy Policy and Terms of Service apply.

$

Do not fill in this field:

This site is protected by reCAPTCHA and the Google Privacy Policy and Terms of Service apply.